De installatieplaats van het BOLT-energieopslagsysteem moet voldoen aan internationale, nationale en lokale regelgeving met betrekking tot brandveiligheid, trillingen, milieu en toegankelijkheid.
De richtlijnen in dit hoofdstuk zijn gebaseerd op o.a. GB 51048 (Design Code for Electrochemical Energy Storage Power Stations), GB 50016 (Fire Prevention Code for Building Design), NFPA 855 (Standard for the Installation of Stationary Energy Storage Systems), en aanvullende lokale voorschriften.
5.1 Eisen voor locatiekeuze
5.1.1 Algemene vereisten
De installatielocatie moet boven het hoogste historische waterniveau liggen, minimaal 300 mm boven maaiveld, en mag zich niet in een laaggelegen gebied bevinden.
Het energiesysteem moet geplaatst worden in een omgeving zonder risico op brand of explosie.
De locatie moet beschikken over goede bereikbaarheid en een betrouwbaar brandbestrijdingssysteem.
Toelichting:
Tijdens installatie, inbedrijfstelling en bediening moeten er minimaal twee gasblussers (zoals FM200, Perfluoro of CO₂) binnen handbereik zijn.
Daarnaast dient de locatie te beschikken over een aansluitpunt voor een waterblussysteem.
Houd bij het ontwerp rekening met toekomstige uitbreidingen gedurende de levenscyclus van het systeem.
De afstand tussen het systeem en draadloze zendmasten of antennes van derden moet minimaal 30 meter bedragen.
De locatie moet goed geventileerd zijn en vrij van bronnen van hitte of dampen.
Vermijd de volgende omgevingen:
Gebieden met sterke trillingen, lawaai of elektromagnetische interferentie.
Locaties met stof, rook, giftige of corrosieve gassen.
Plaatsen waar brandbare, explosieve of bijtende stoffen worden opgeslagen of geproduceerd.
Locaties met ondergrondse leidingen of constructies.
Gronden met slechte stabiliteit (zoals klei, slappe ondergrond, of plekken die snel water vasthouden).
Locaties onder waterreservoirs, leidingen of watervoorzieningsinstallaties.
Toelichting:
Indien plaatsing in een watergevoelig gebied onvermijdelijk is, moeten er waterkerende en afwateringsmaatregelen worden aangebracht.
Kabelgoten mogen niet als afvoer dienen; openingen voor kabeldoorvoer moeten brandwerend worden afgesloten.
Niet toegestaan:
Gebieden met seismische activiteit > 9 graden op de schaal.
Locaties met aardverschuivingen, modderstromen of mijnverzakkingen.
Gebieden met explosiegevaar, damdoorbraken of hoog risico op overstroming.
Beschermde natuur-, erfgoed- of drinkwaterzones.
Gebouwen met hoge bezetting, hoogbouw of ondergrondse constructies.
Drukke verkeerspunten of kruisingen.
Overstromingsbeveiliging:
Voor grote installaties (≥ 100 MW): terreinhoogte moet boven het 1%-overstromingsniveau of het hoogste historische peil liggen.
Voor kleinere installaties (< 100 MW): terreinhoogte moet boven het 2%-overstromingsniveau of het hoogste historische peil liggen.
Wanneer aan deze eisen niet voldaan kan worden, moeten extra dijk- of drainagemaatregelen worden getroffen.
Bij installaties langs rivieren, meren of kustgebieden moet rekening worden gehouden met golfslag en een veiligheidsmarge van 0,5 m.
Indien er waterafvoer langs de installatie loopt, moet een zijgoot of afwateringssloot worden voorzien.
5.1.2 Vereisten voor buitenopstelling
Binnen een straal van 3 meter rond de installatie mogen geen brandbare vegetatie of struiken aanwezig zijn.
(Uitzondering: gras, klimop, vetplanten of ander niet-brandgevaarlijk bodembedekkers zijn toegestaan.)De veiligheidsafstand tot gebouwen moet voldoen aan de lokale brandveiligheidsvoorschriften.
Buiten geplaatste ESS-systemen moeten minimaal 3,0 m (10 ft) verwijderd zijn van:
perceelgrenzen,
openbare wegen,
gebouwen,
brandbare of gevaarlijke materialen,
parkeerplaatsen en hoge opslagstapels.
De afstand mag worden verminderd tot 0,9 m (3 ft) indien:
er een brandwerende muur van 1 uur aanwezig is die het systeem volledig afschermt;
of de aangrenzende buitenmuur onbrandbaar is en een brandwerendheid van ≥ 2 uur heeft (conform ASTM E119 of UL 263).
Daarnaast gelden:
De afstand tussen het uitlaatrooster van het ESS en ventilatieopeningen, ramen, deuren of ontstekingsbronnen van andere gebouwen moet > 4,6 m bedragen.
Installatie in zout- of vervuilde omgevingen is niet toegestaan.
Aanbevolen: op meer dan 10 km van de kust.
2–10 km: alleen na overleg met fabrikant.
< 2 km: enkel binnenopstelling toegestaan.
Afstanden tot vervuilingsbronnen:
| Type vervuiling | Minimale afstand |
|---|---|
| Zware industrie (smelterijen, kolencentrales, mijnen) | > 5000 m |
| Middelzware industrie (chemie, rubber, galvanisatie) | > 3000 m |
| Lichte industrie (voedsel, leer, afvalstations) | 500–1000 m |
Indien de vereiste afstanden niet gehaald worden, is herlocatie of herontwerp verplicht.
Omheining:
Het terrein moet worden afgezet met een vaste muur of hekwerk van minimaal 2,2 m hoog voorzien van sloten.
Een firewall mag gedeeltelijk of geheel dienen als vervanging van het hekwerk.
5.1.3 Vereisten voor binnenopstelling
De bouwkundige brandveiligheid van een dedicated gebouw of ruimte voor het ESS moet voldoen aan de lokale brandvoorschriften, met referentie aan NFPA 855, GB 50016, en GB 51048.
Bouwkundige eisen:
Het gebouw is uitsluitend bestemd voor energieopslag (geen andere functies).
Muren hebben een brandwerendheid ≥ 2 uur, en de maximale totale batterijcapaciteit per brandcompartiment bedraagt 600 kWh.
Toegang is uitsluitend toegestaan aan bevoegd personeel (bediening, onderhoud, test, reparatie).
Afstanden:
Minimaal 3 meter tot wegen, gebouwen, parkeerplaatsen, elektrische infrastructuur en opslagruimten met gevaarlijke stoffen.
Geen opslag van brandbare materialen binnen het gebouw; afstand tot brandbare objecten minimaal 3 meter.
Brandbeveiliging:
Minimaal 2 draagbare blussers per compartiment (type FM200, CO₂, halothaan of poeder).
Automatische rookdetectie: ≥ 2 sensoren per ruimte, gekoppeld aan een brandmeldinstallatie.
Mechanische ventilatie verplicht, gekoppeld aan het brandmeldsysteem.
Ventilatiecapaciteit: zodanig dat brandbare gassen < 25% LFL blijven.
Min. afzuigsnelheid: 1 ft³/min/ft² (5,1 L/s/m²).
Gasdetectiesysteem vereist met:
Automatische activering van ventilatie bij > 25% LFL.
Back-up voeding ≥ 2 uur.
Storingmelding naar controlecentrum.
Brandblusvoorzieningen:
Installatie van sprinklers of waternevelsysteem met:
werktijd ≥ 2 uur;
minimale sproeidichtheid: 0,3 gpm/ft² (12,2 mm/min) of max. 230 m² ontwerpoppervlak.
Continue watervoorziening gedurende minimaal 12 uur vereist.
Explosiebeveiliging:
Gebouw moet zijn voorzien van drukontlastingszones of explosiebestendige componenten, conform NFPA 68.
Indien zijwaartse drukontlasting wordt toegepast, moet een beschermingshek ≥ 3 m van de ontlastingswand worden geplaatst.
Overige eisen:
Bedrijfstemperatuur binnen ≤ 55 °C.
Geen brandbare materialen boven het systeem.
Ruimte moet voldoende groot zijn voor onderhoud en gebruik van een heftruck.
Nooduitgangen en vluchtwegen moeten voldoen aan de lokale bouwvoorschriften, voorzien van noodverlichting en openen in vluchtrichting.
Uitzonderingen:
Bepaalde eisen (zoals sprinklers of gasdetectie) kunnen worden vrijgesteld mits goedkeuring door de lokale brandweer.
Wanneer het ESS zich meer dan 30 meter van andere gebouwen en infrastructuur bevindt, kunnen isolatie- en brandbeveiligingssystemen gedeeltelijk worden vrijgesteld.
Extra voor kustlocaties (< 500 m van zee):
Plaats het systeem in een gesloten, geconditioneerd gebouw met corrosiebescherming (min. C4 volgens ISO 12944/9223).
Gebruik anti-zoutnevel ventilatie en filters met periodiek onderhoud.
5.2 Ruimtevereisten
De onderstaande richtlijnen beschrijven de minimale installatie- en onderhoudsruimte die nodig is voor een veilige en toegankelijke plaatsing van BOLT-systemen.
De opgegeven waarden moeten worden beschouwd als minimale afstanden; bij voorkeur wordt extra ruimte gereserveerd om onderhoud, inspectie en toekomstige uitbreidingen te vergemakkelijken.
De ruimtevereisten gelden in aanvulling op de locatie-eisen zoals vermeld in § 5.1 (Locatiekeuze).
5.2.1 Enkele BOLT-215 kWh
Figuur 5-1 Minimale ruimtevereisten voor één BOLT-215 kWh
| Categorie | Parameter |
|---|---|
| Verharde oppervlakte (min.) | L ≥ 1886 mm W ≥ 1350 mm |
Onderhoudsruimte voor stapelaar: 3086 × 3650 mm
Onderhoudsruimte voor vorkheftruck: 3086 × 3650 mm
5.2.2 Twee BOLT-215 kWh
Figuur 5-2 Twee BOLT-215 kWh naast elkaar
Stapelaar : 4822 × 3800 mm | Vorkheftruck : 4822 × 6300 mm

Figuur 5-3 Twee BOLT-215 kWh tegenover elkaar
Stapelaar : 7100 × 3086 mm | Vorkheftruck : 9600 × 3086 mm

Figuur 5-4 Twee BOLT-215 kWh rug-aan-rug
Stapelaar : 6650 × 3086 mm | Vorkheftruck : 11650 × 3086 mm
5.2.3 Drie BOLT-215 kWh + PowerHub

Figuur 5-5 Drie BOLT-215 kWh naast elkaar
Stapelaar : 7408 × 3800 mm | Vorkheftruck : 7408 × 6300 mm
5.2.4 Vier BOLT-215 kWh + PowerHub

Figuur 5-6 Vier BOLT-215 kWh naast elkaar
Stapelaar : 9144 × 3800 mm | Vorkheftruck : 9144 × 6300 mm

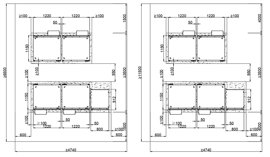
Figuur 5-7 Vier BOLT-215 kWh rug-aan-rug
Stapelaar : 5672 × 6500 mm | Vorkheftruck : 5672 × 11500 mm
5.2.5 Vijf BOLT-215 kWh + PowerHub

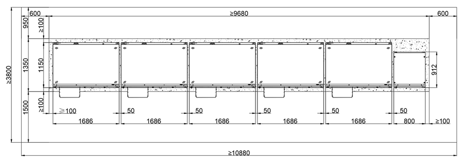
Figuur 5-8 Vijf BOLT-215 kWh naast elkaar
Stapelaar : 10880 × 3800 mm | Vorkheftruck : 10880 × 6300 mm

Figuur 5-9 Vijf BOLT-215 kWh rug-aan-rug
Stapelaar : 6558 × 6500 mm | Vorkheftruck : 6558 × 11500 mm
5.2.6 Zes BOLT-215 kWh + PowerHub

Figuur 5-10 Zes BOLT-215 kWh naast elkaar
Stapelaar : 12616 × 3800 mm | Vorkheftruck : 12616 × 6300 mm

Figuur 5-11 Zes BOLT-215 kWh rug-aan-rug
Stapelaar : 7408 × 6500 mm | Vorkheftruck : 7408 × 11500 mm
5.2.7 Enkele BOLT-107 kWh

Figuur 5-12 Minimale ruimtevereisten voor één BOLT-107 kWh
| Categorie | Parameter |
|---|---|
| Verharde oppervlakte (min.) | L ≥ 1420 mm W ≥ 1350 mm |
Stapelaar : 3086 × 3650 mm | Vorkheftruck : 3086 × 3650 mm
5.2.8 Twee BOLT-107 kWh

Figuur 5-13 Twee BOLT-107 kWh naast elkaar
Stapelaar : 3890 × 3800 mm | Vorkheftruck : 3890 × 6300 mm

Figuur 5-14 Twee BOLT-107 kWh rug-aan-rug
Stapelaar : 6650 × 2620 mm | Vorkheftruck : 11650 × 2620 mm

Figuur 5-15 Twee BOLT-107 kWh tegenover elkaar
Stapelaar : 6800 × 2620 mm | Vorkheftruck : 9300 × 2620 mm
5.2.9 Drie BOLT-107 kWh + PowerHub

Figuur 5-16 Drie BOLT-107 kWh naast elkaar
Stapelaar : 6010 × 3800 mm | Vorkheftruck : 6010 × 6300 mm
5.2.10 Vier BOLT-107 kWh + PowerHub

Figuur 5-17 Vier BOLT-107 kWh naast elkaar
Stapelaar : 7280 × 3800 mm | Vorkheftruck : 7280 × 6300 mm

Figuur 5-18 Vier BOLT-107 kWh rug-aan-rug
Stapelaar : 4740 × 6500 mm | Vorkheftruck : 4740 × 11500 mm
5.2.11 Vijf BOLT-107 kWh + PowerHub

Figuur 5-19 Vijf BOLT-107 kWh naast elkaar
Stapelaar : 8550 × 3800 mm | Vorkheftruck : 8550 × 6300 mm

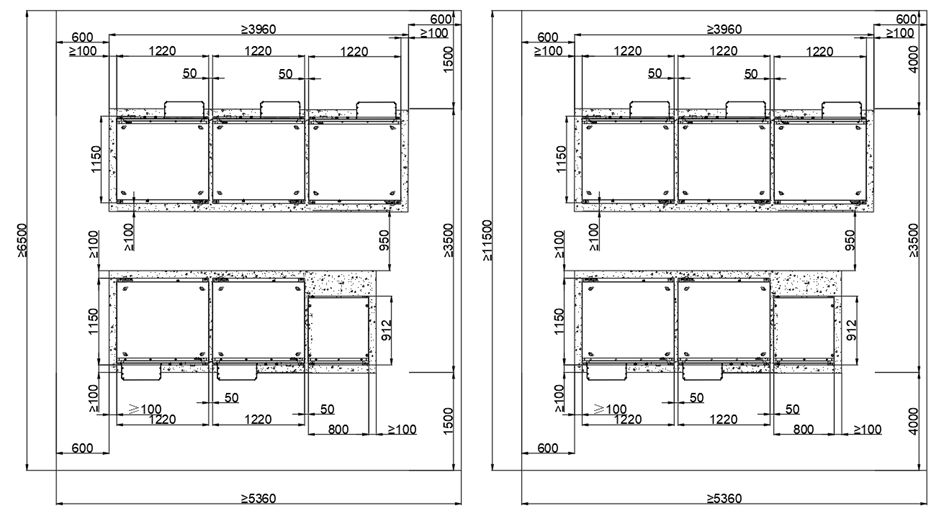
Figuur 5-20 Vijf BOLT-107 kWh rug-aan-rug
Stapelaar : 5360 × 6500 mm | Vorkheftruck : 5360 × 11500 mm
5.2.12 Zes BOLT-107 kWh + PowerHub

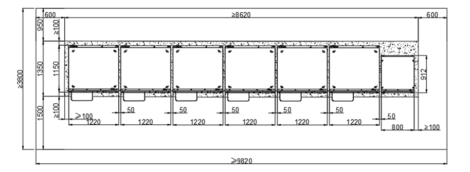
Figuur 5-21 Zes BOLT-107 kWh naast elkaar
Stapelaar : 9820 × 3800 mm | Vorkheftruck : 9820 × 6300 mm

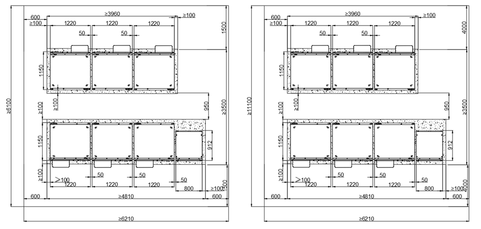
Figuur 5-22 Zes BOLT-107 kWh rug-aan-rug
Stapelaar : 6210 × 6100 mm | Vorkheftruck : 6210 × 11100 mm
Opmerking:
De opgegeven waarden gelden bij vlakke, verharde ondergrond met voldoende draagvermogen.
Alle afmetingen zijn exclusief veiligheidsmarges voor hekwerken, brandgangen of nooduitgangen.
Voor clusters groter dan zes eenheden wordt een specifiek installatiediagram aanbevolen — neem contact op met de technische afdeling van Boltainer voor projectondersteuning.
5.3 Funderingseisen
De BOLT-energiesystemen moeten worden geplaatst op een stabiele, brandveilige en voldoende draagkrachtige fundering.
Een correct ontworpen en uitgevoerde fundering is essentieel voor de mechanische veiligheid, levensduur en waterafvoer rond de installatie.
5.3.1 Eisen voor het funderingsontwerp
Het energieopslagsysteem moet worden geïnstalleerd op een betonnen of andere onbrandbare ondergrond. Het oppervlak moet vlak, stabiel en voldoende draagkrachtig zijn, zonder verzakkingen of hellingen.
De fundering moet worden ontworpen op basis van het totale gewicht van de installatie. Indien de draagkracht niet toereikend is, moet het funderingsontwerp worden herberekend en aangepast.
De bodem in de funderingskuil moet goed verdicht en aangevuld zijn.
Na ontgraving mag de fundering niet verzadigd raken met water; wanneer dit toch gebeurt, moet de verzwakte laag opnieuw worden ontgraven en hersteld.
De horizontale afwijking tussen de bovenkant van de fundering en het contactvlak van de kast mag maximaal 3 mm bedragen.
De bovenkant van de fundering moet boven het lokale historische hoogste waterpeil liggen en ten minste 100 mm boven het omliggende maaiveld uitsteken.
Rond de fundering moeten afwateringsvoorzieningen worden aangebracht, conform de lokale geologische en gemeentelijke eisen, zodat geen water kan blijven staan bij de voet van de kast. De afvoer moet voldoen aan de lokale wet- en regelgeving.
Bij het ontwerpen van de fundering moet rekening worden gehouden met de kabeluitgangen van het energieopslagsysteem; hiervoor moeten kabelgoten of -doorvoeren worden gereserveerd.
Alle doorvoeren in de fundering en de kabelinvoeropeningen aan de onderzijde van de kast moeten na installatie deugdelijk worden afgedicht (bijv. tegen water, stof en knaagdieren).
De meegeleverde funderingstekening is een referentietekening en mag niet als definitieve uitvoerings-/constructietekening worden gebruikt.
Gebruikers dienen het funderingsontwerp altijd te laten toetsen aan de plaatselijke omstandigheden: installatieomgeving, draagkracht van de ondergrond, geologie en seismische eisen.

Let op:
L staat voor de breedte van het installatievlak van één kast,
W staat voor de diepte van het installatievlak van één kast.
Op de bouwplaats kunnen stalen vulplaten/onderlegplaten worden voorbereid om kleine oneffenheden in de fundering uit te vlakken.
5.3.2 Funderingseisen – BOLT 215 kWh
| Categorie | Parameter |
|---|---|
| Minimale verharde oppervlakte | L ≥ 1886 mm, W ≥ 1350 mm |
| Minimale funderingshoogte | H ≥ 100 mm (boven historisch hoogste waterpeil) |
| Draagvermogen fundering | > 2,5 t/m² |
| Ontwerplevensduur fundering | ≥ 20 jaar |
| Toegestane vlakheidsafwijking | ≤ 3 mm/m² |
5.3.3 Funderingseisen – BOLT-107 kWh
| Categorie | Parameter |
|---|---|
| Minimale verharde oppervlakte | L ≥ 1420 mm, W ≥ 1350 mm |
| Minimale funderingshoogte | H ≥ 100 mm (boven historisch hoogste waterpeil) |
| Draagvermogen fundering | > 1,5 t/m² |
| Ontwerplevensduur fundering | ≥ 20 jaar |
| Toegestane vlakheidsafwijking | ≤ 3 mm/m² |
Was dit artikel nuttig?
Dat is fantastisch!
Hartelijk dank voor uw beoordeling
Sorry dat we u niet konden helpen
Hartelijk dank voor uw beoordeling
Feedback verzonden
We stellen uw moeite op prijs en zullen proberen het artikel te verbeteren
